
Quando il TEMPO incontra la TECNOLOGIA - rilievo e restituzione modello edificio storico
Martinengo (BG)
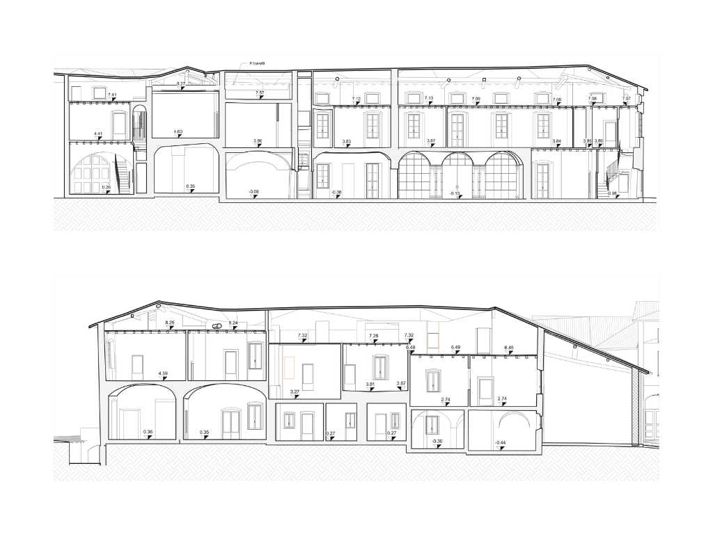
Il caso in esame ha visto il nostro intervento su un edificio storico dove, per le peculiarità dello stato dell’arte, si è dovuto operare in sinergia per restituire nel modello anche le irregolarità dei solai e delle coperture oltre alla verticalità delle pareti.
Per raggiungere l’obiettivo è stata adottata una precisione rilevante per consentire, alla progettazione futura, una base certa su cui impostare la riqualificazione dell’immobile ridando nuove funzioni agli spazi.
Il nostro lavoro è iniziato dalla topografia, attraverso il rilievo altimetrico e la georeferenziazione tramite GPS dell’edificio.
Successivamente è stato eseguito un rilievo laser scanner delle facciate esterne, integrando gli ambienti interni — dove il tempo sembra essersi fermato — tramite acquisizione con scanner NavVis, permettendo una mappatura completa e dettagliata degli spazi.
La fase di elaborazione ha previsto il trattamento dei dati con Meridiana e la generazione della nuvola di punti tramite Magnet, per poi passare alla modellazione Revit e alla restituzione del modello, rappresentando con elevato livello di dettaglio la geometria reale dell’edificio.
La tecnologia diventa così uno strumento fondamentale per valorizzare il patrimonio esistente.
Progettisti
Topografo Luca Biffi
Assistente Topografo Simone Cortinovis
Responsabile
commessa
Geom. Alessio Picenni
Anno
2025
Settore
Topografico
Residenziale
































